Container 2

Tiny cabin, big lake days — with a view from above.

Sleeps 2

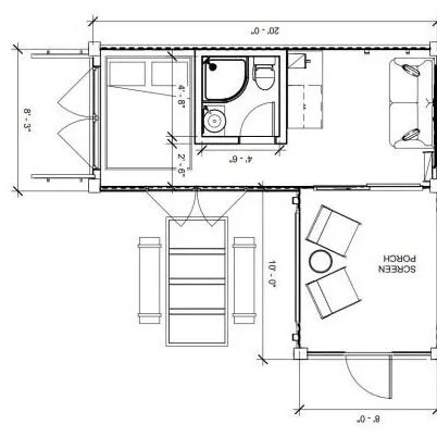
This thoughtfully converted 8×20 shipping container cabin offers a comfortable glamping retreat just a short walk from the beach. Inside you’ll find a queen bed, private bath, A/C and heat, plus an 8×10 screened porch and wraparound deck with peaceful views of the lake. It’s common to spot loons on the water or deer wandering through the trees nearby.

Outdoor-style cooking is part of the experience. The cabin includes a mini fridge, grill with side burner, tabletop convection oven, and Keurig coffee maker (with filter for standard coffee). There’s no kitchen sink, but the bathroom sink works for quick rinses, and running water outside with a dedicated dishwashing station makes cleanup easy. With a cooler, cookware, and dishes included, meals are easygoing and perfectly suited to lake life.

The screened porch features a comfortable loveseat and chair along with a small outdoor dining table for relaxed meals. Above it all is the rooftop deck, a perfect perch for sunset, stargazing, or morning coffee overlooking Upper Bottle Lake.

After a day on the water, gather around your private fire pit and let the quiet of the lake settle in.

Amenities
Wi-Fi • A/C • Heat • Fire Pit • Grill • Adirondack Chairs • Bedding & Towels Provided